Openings Studio
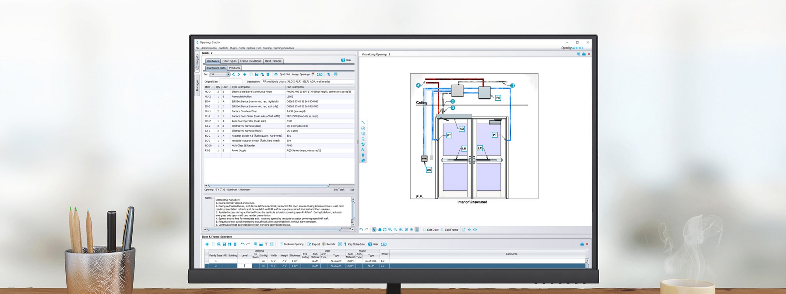
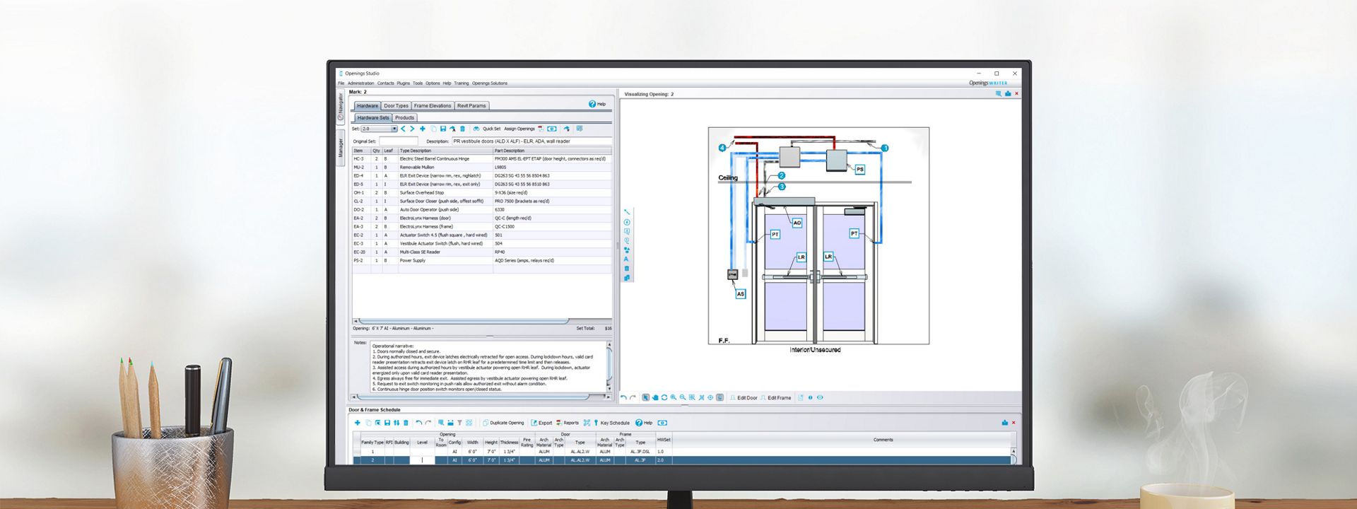
Un outil de prescription intelligent, innovant et compatible BIM favorisant la collaboration et le partage d'information.
Un outil de prescription intelligent, innovant et compatible BIM favorisant la collaboration et le partage d'information.